Form Meets Function: Rendering by Hand

DESIGN IN TRANSLATION

Here at Layered Dimensions Interior Design, most projects begin with a sketch. Quick, intuitive lines—on paper, on site, sometimes even on sheetrock—let ideas surface fast. There’s something immediate and tactile about it. Clients can see the design take shape in front of them, and we can make decisions in real time.

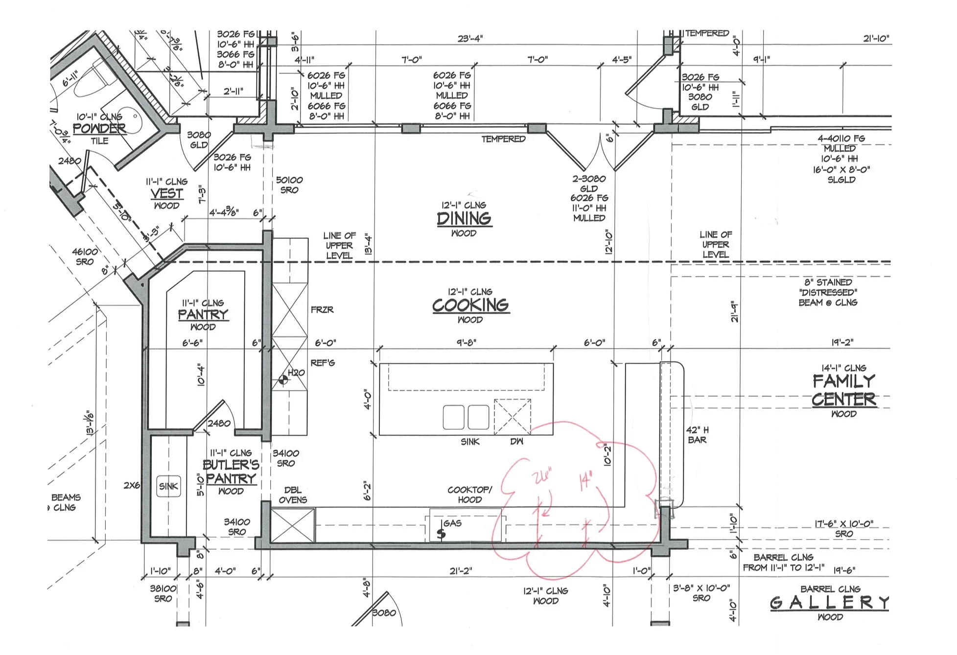
Once the concept starts to settle, we move into 2D. Plans, elevations, and sections bring clarity and structure. These drawings guide the build, turning loose ideas into something measurable. It's more technical, more formal—but still responsive.

Then comes the third step: 3D renderings. This is where the space becomes immersive. You can sense the light, the textures, the volume. It’s often the moment when clients stop seeing a design and start seeing their future home.

It’s a process we trust. Sketching allows for spontaneity. Drawings bring discipline. Renderings add atmosphere and dimension. Each step sharpens the idea and carries it closer to reality—with clarity, care, and just the right amount of momentum.



Previous
Previous

Powder Baths: Small Spaces, Bold Statements

Next
Next

Studio Notes: Scenes from a Shower